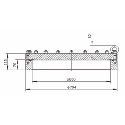
20 point fastening cover 18 equi-spaced on 565.2PCD. 20-M16 bolts with PTFE seal, contact
parts 316L, fits for high pressure tank.

20 point fastening cover 18 equi-spaced on 565.2PCD. 20-M16 bolts with PTFE seal, contact
parts 316L, fits for high pressure tank.


